Close
  • HOME
  • TOBIAS KISTER
  • ARCHITEKTUR
  • SCHULBAU
  • INNOVATION
  • HOME
  • TOBIAS KISTER
  • ARCHITEKTUR
  • SCHULBAU
  • INNOVATION

GS Neunkirchen

ORT

Neunkirchen

Jahr

2024 – 2025

Architekt

Tobias Kister 

Architekturbüro Kister & Teamchanger

Bei der von uns angedachten Ausweitung der Lernbereiche mit einer entsprechenden Möblierung, sind wir von den derzeit gängigen brandschutzrechtlichen Ansätzen ausgegangen. Diese Ansätze finden sich in den verschiedenen Bundesländern wieder, wie auch in Niedersachsen, werden bei Neubauten fast ausschließlich angewendet.

Ungeachtet der länderspezifischen Betrachtung hat die Montags-Stiftung eine Broschüre zu diesem aktuellen Thema erarbeitet.

Die Broschüre gibt anwendungsorientierte Empfehlungen auf Grundlage des von der Technischen Universität Kaiserslautern durchgeführten Forschungsprojekts „Brandschutz im Schulbau“, das durch die Deutsche Bundesstiftung Umwelt gefördert wurde. Die Empfehlungen tragen dem ursprünglichen Auftrag des Brandschutzes – Menschen in Gebäuden vor Gefahren zu schützen – Rechnung und unterstützen die pädagogische Forderung nach flexiblen Raumkonzepten.

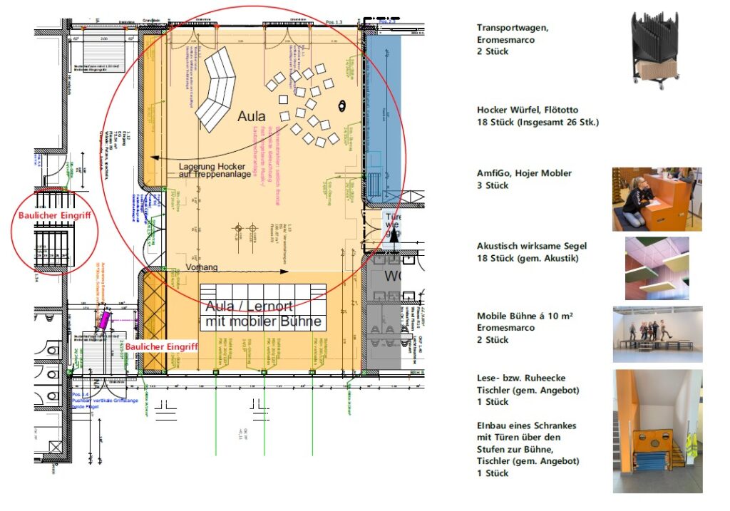
Das Foyer im Erdgeschoss kann als Lernbereich betrachtet werden. Es bildet das Gelenk zwischen dem eingeschossigen und dem zweigeschossigen Gebäudekomlpex. Aus dieser relativ geringen Lernbereichsfläche sind drei unterschiedliche Fluchtausgänge vorhanden. Eine Ausgang über den Haupteingang auf den Vorplatz, ein Ausgang in das zweigeschossige Lerncluster mit Treppenhäusern und einen direkten Ausgang auf den Schulhof. Diese Vielzahl an Ausgängen mit Fluchtlängen unter 25 m ins Freie sprechen für eine nutzbare Lernfläche.

Vor diesem Hintergrund und den Erfahrungen in verschiedensten Schulbau-Projekten haben wir die Grundschule betrachtet.  Mit zu ergänzenden Maßnahmen, im Rahmen von Kompensationen, haben wir Vorschläge für mögliche „Compartement“-Bildungen bei dem bestehenden Gebäude gemacht.

Darauf aufbauend, wurde der gewonnene Lernraum für ganztägig arbeitende Schulen möbliert. Auf den in Lernräume umgestalteten Flurflächen wurden ebenfalls multifunktionale Möbel eingesetzt. Zur multifunktionalen Nutzung wird das ZAP-System mit den Aluminiumschienen und den darin einklinkbaren Lernboarden gewählt.  Die Schienen aus Aluminium sind darüber hinaus nicht brennbar und für diese Örtlichkeit sehr geeignet.

KONTAKT

Ich freue mich darauf, Sie kennenzulernen!

Lindenstraße 12

27711 Osterholz-Scharmbeck

+49 172 8027075

kister@kister-architekt.de

  • DATENSCHUTZERKLÄRUNG
  • IMPRESSUM
Menü
  • DATENSCHUTZERKLÄRUNG
  • IMPRESSUM

© 2023 All rights Reserved.

Facebook Twitter Google-plus Pinterest

Lade...
Lade...